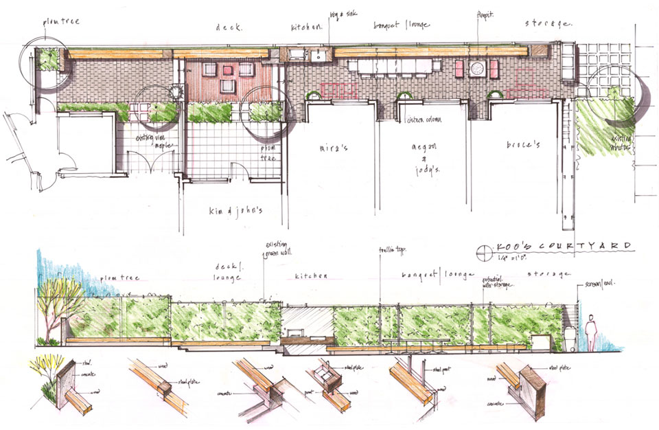
Tying together six townhouses on the site of an old autobody shop in Vancouver’s Strathcona neighbourhood, Koo’s Courtyard provides a small community with its social heart. The design challenge was to make a virtue of the narrow space, which has a width of 2.8m for most of its length. With six fenced private patios, overgrown shrubs and bulky stormwater barrels, the dysfunctional existing garden area left little room for anything else. Hapa’s first move was to clear the clutter and reveal the potential for communal use. In this respect, we were privileged to work with an enlightened client group that was ready to move from the typical backyard archetype to a new social paradigm.