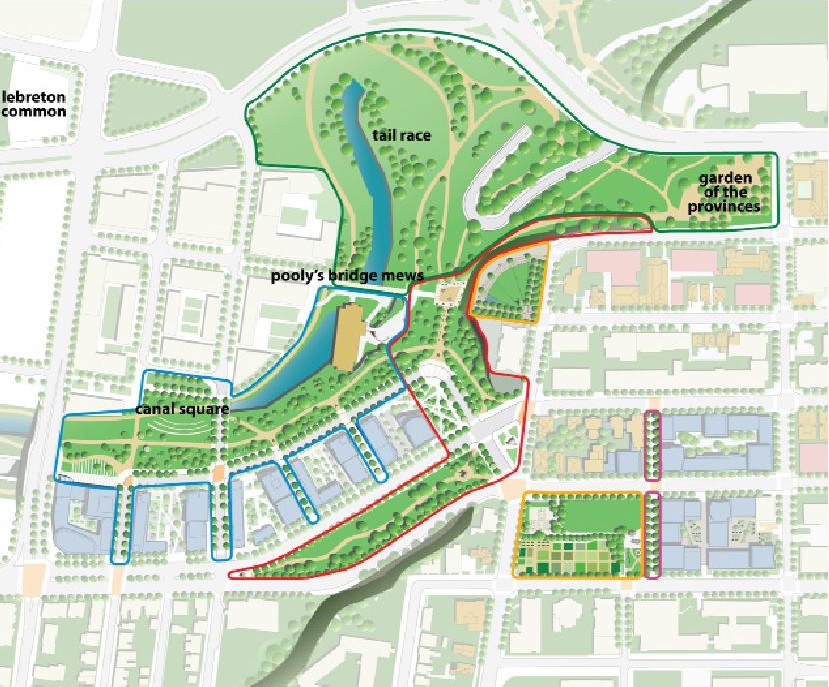
The Ottawa Escarpment Area District Plan exemplifies the importance of creating sustainable living environments. The plan emphasises and promotes innovative development with provisions for heritage conservation, parks, open spaces and community gardens, and connections to public transit.
This Plan was a consensus driven vision. The team gathered insights from neighbourhood groups, the Plan's public advisory committee, stakeholder interviews, as well as the broader public, and used these insights as a basis for the planning process. The result is a vision which positions this area for future opportunities by creating a strong foundation for the introduction of new development and park spaces, thereby better integrating the Escarpment District with the Downtown, adjacent neighbourhoods, and national open spaces and waterway systems.
Finally, the plan was approved by Ottawa City Council on December 10, 2008.